NOVUS MODUS
Портфолио
Услуги
Школа
Стоимость
Контакты
+7 922 113-54-45
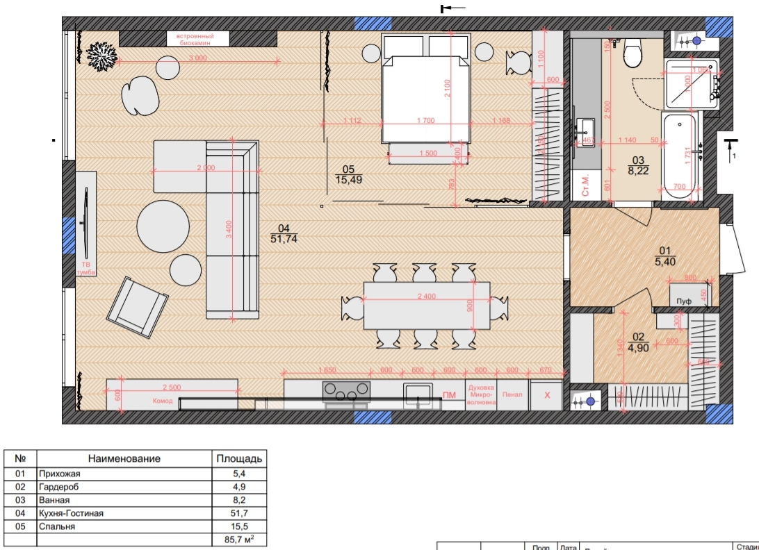
жк FORUM CITY, Екатеринбург
Площадь:
85 м2
Выполнено:
визуализация прихожей, кухни-гостиной, спальной,
рабочие чертежи, подбор отделочных материалов,
осветительного оборудования, мебели и сантехники, комплектация, сторительные и отделочные работы
Стадия реализации: сдано
поселок Заповедник, Екатеринбург
Площадь:
85 м2
Выполнено:
дизайн-проект прихожей, кухни, гостиной, спальной, детской, санузлов
рабочие чертежи, подбор отделочных материалов,
осветительного оборудования, мебели и сантехники, комплектация, сторительные и отделочные работы
ЛЕСНАЯ УСАДЬБА, Старопышминск
Площадь:
150 м2
Выполнено:
визуализация прихожей, кухни-гостиной, спальной,
рабочие чертежи,
подбор отделочных материалов,
осветительного оборудования, мебели и сантехники
жк ВЕРНИСАЖ,
Екатеринбург
Площадь:
55 м2
Выполнено:
визуализация прихожей, кухни-гостиной, спальной,
рабочие чертежи, подбор отделочных материалов,
осветительного оборудования, мебели и сантехники, комплектация интерьера, строительные и отделочные работы. "Ремонт под ключ", авторский надзор
жк Макаровский,
Екатеринбург
Площадь:
55 м2
Выполнено:
дизайн-проект прихожей, кухни, гостиной, спальной,
рабочие чертежи, подбор отделочных материалов,
осветительного оборудования, мебели и сантехники, комплектация интерьера, строительные и отделочные работы. "Ремонт под ключ", авторский надзор
клубный дом MAGNUM, Москва
Площадь:
75 м2
Выполнено:
визуализация прихожей, кухни-гостиной, спальной,
рабочие чертежи, подбор отделочных материалов,
осветительного оборудования, мебели и сантехники
жк ELEVEN, Москва
Площадь:
85 м2
Выполнено:
визуализация прихожей, кухни-гостиной, спальной,
рабочие чертежи, подбор отделочных материалов,
осветительного оборудования, мебели и сантехники
клубный дом STORY , Москва
Площадь:
85 м2
Выполнено:
визуализация прихожей, кухни-гостиной, спальной,
рабочие чертежи,
подбор отделочных материалов,
осветительного оборудования, мебели и сантехники
жк МИЛЕННИУМ, Екатеринбург
Площадь
: 72 м2
Выполнено
: визуализация прихожей, кухни-гостиной, спальной,
рабочие чертежи, подбор отделочных материалов,
осветительного оборудования, мебели и сантехники, авторский надзор, комплектация
ДОМ НА БЕРЕГУ
Площадь:
150 м2
Выполнено:
интерьеры спален, холлов 1 и этажей, гостиной, ванной комнаты
Роспись стен и потолков, столярные работы, разработка авторской мебели
Время выполнения:
20 дней
ЗАГОРОДНЫЙ ДОМ п. Сарапулка
Площадь:
120 м2
Выполнено:
дизайн-проект, комплектация, авторский надзор, декорирование
Время выполнения:
30 дней
ЧАСТНЫЙ ДОМ, Екатеринбург
Площадь:
650 м2
Выполнено:
архитектурный проект дома, разделы АР, КР, ОВ, ВК, ЭЭ
ведение строительства, технический надзор
дизайн-проект, комплектация, авторский надзор, декорирование
Время выполнения:
180 дней
жк АЛЕКСАНДРОВСКИЙ КВАРТАЛ, Екатеринбург
Площадь:
70 м2
Выполнен интерьер:
кухни, гостиной, ванной, гардеробной, кабинета, прихожей
Время выполнения:
20 дней
ЧАСТНЫЙ ДОМ, Старопышминск
Площадь:
120 м2
Выполнено:
дизайн-проект, подбор материалов, комплектация, авторский надзор
Время выполнения:
40 дней
жк КРЫЛОВ, Екатеринбург
Площадь:
70 м2
Услуги:
дизайн интерьера, визуализация всех помещений, рабочие чертежи, подбор отделочных материалов, осветительного оборудования, мебели и сантехники, авторский надзор
Выполнен интерьер:
кухни, гостиной, спальной комнаты, детской, кабинета ванной комнаты, санузла, гардеробной
Время выполнения:
45 дней
Назад в портфолио
жк FORUM CITY, Екатеринбург
Площадь:
85 м2
Выполнено:
визуализация прихожей, кухни-гостиной, спальной,
рабочие чертежи, подбор отделочных материалов,
осветительного оборудования, мебели и сантехники, комплектация, сторительные и отделочные работы
Стадия реализации: сдано
поселок Заповедник, Екатеринбург
Площадь:
85 м2
Выполнено:
дизайн-проект прихожей, кухни, гостиной, спальной, детской, санузлов
рабочие чертежи, подбор отделочных материалов,
осветительного оборудования, мебели и сантехники, комплектация, сторительные и отделочные работы
ЛЕСНАЯ УСАДЬБА, Старопышминск
Площадь:
150 м2
Выполнено:
визуализация прихожей, кухни-гостиной, спальной,
рабочие чертежи,
подбор отделочных материалов,
осветительного оборудования, мебели и сантехники
жк ВЕРНИСАЖ,
Екатеринбург
Площадь:
55 м2
Выполнено:
визуализация прихожей, кухни-гостиной, спальной,
рабочие чертежи, подбор отделочных материалов,
осветительного оборудования, мебели и сантехники, комплектация интерьера, строительные и отделочные работы. "Ремонт под ключ", авторский надзор
жк Макаровский,
Екатеринбург
Площадь:
55 м2
Выполнено:
дизайн-проект прихожей, кухни, гостиной, спальной,
рабочие чертежи, подбор отделочных материалов,
осветительного оборудования, мебели и сантехники, комплектация интерьера, строительные и отделочные работы. "Ремонт под ключ", авторский надзор
клубный дом MAGNUM, Москва
Площадь:
75 м2
Выполнено:
визуализация прихожей, кухни-гостиной, спальной,
рабочие чертежи, подбор отделочных материалов,
осветительного оборудования, мебели и сантехники
жк ELEVEN, Москва
Площадь:
85 м2
Выполнено:
визуализация прихожей, кухни-гостиной, спальной,
рабочие чертежи, подбор отделочных материалов,
осветительного оборудования, мебели и сантехники
клубный дом STORY , Москва
Площадь:
85 м2
Выполнено:
визуализация прихожей, кухни-гостиной, спальной,
рабочие чертежи,
подбор отделочных материалов,
осветительного оборудования, мебели и сантехники
жк МИЛЕННИУМ, Екатеринбург
Площадь
: 72 м2
Выполнено
: визуализация прихожей, кухни-гостиной, спальной,
рабочие чертежи, подбор отделочных материалов,
осветительного оборудования, мебели и сантехники, авторский надзор, комплектация
ДОМ НА БЕРЕГУ
Загородный дом для отдыха на природе
ЗАГОРОДНЫЙ ДОМ п. Сарапулка
Частный дом для отдыха
ЧАСТНЫЙ ДОМ, Екатеринбург
Частный дом для отдыха
жк АЛЕКСАНДРОВСКИЙ КВАРТАЛ, Екатеринбург
Компактная квартира в стиле лофт для двоих.
ЧАСТНЫЙ ДОМ, Старопышминск
Площадь:
120 м2
Выполнено:
дизайн-проект, подбор материалов, комплектация, авторский надзор
Время выполнения:
40 дней
жк КРЫЛОВ, Екатеринбург
Площадь:
70 м2
Услуги:
дизайн интерьера, визуализация всех помещений, рабочие чертежи, подбор отделочных материалов, осветительного оборудования, мебели и сантехники, авторский надзор
Выполнен интерьер:
кухни, гостиной, спальной комнаты, детской, кабинета ванной комнаты, санузла, гардеробной
Время выполнения:
45 дней