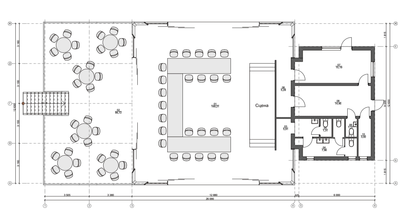
Площадь: 170 м2 Павильон для проведения корпоративов, свадеб, конференций. Легкий, воздушный на вид, он очень устойчив и прочен благодаря своей уникальной конструкции-геосфере. Компактный, оригинальный и при этом достаточно вместительный павильон.
Проект коттеджа в поселке Хрустальный
Площадь: 280 м2 Услуги: архитектурное проектирование, визуализация, рабочие чертежи, строительство Выполнен интерьер: эскизный проект коттеджа Время выполнения: 30 дней
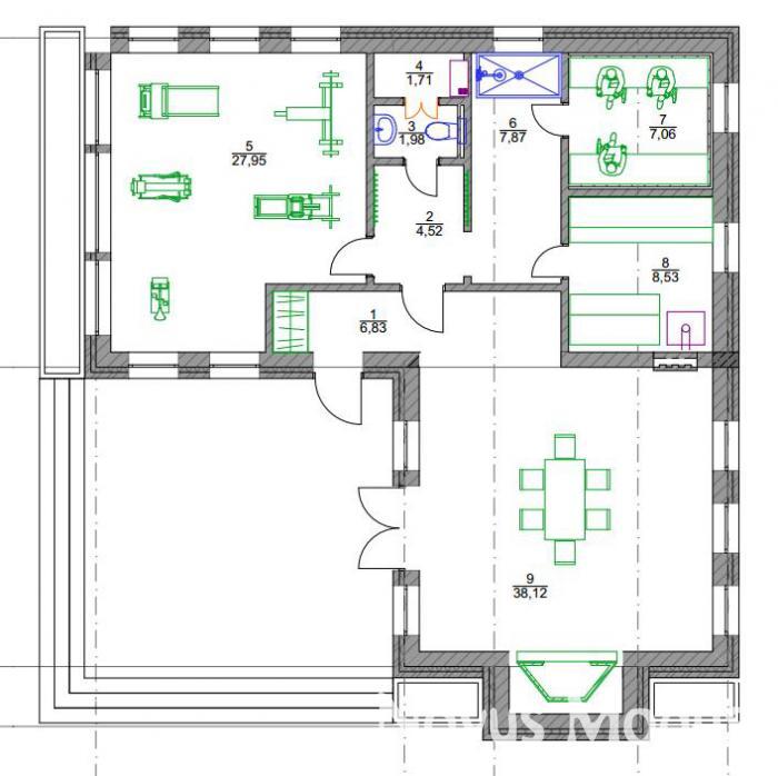
Эскизный проект банного комплекса. Поселок Хрустальный
Банный комплекс включает тренажерный зал, котельную для основного дома, обеденный зал сбольшим камином для приготовления еды, сауну и хамам.
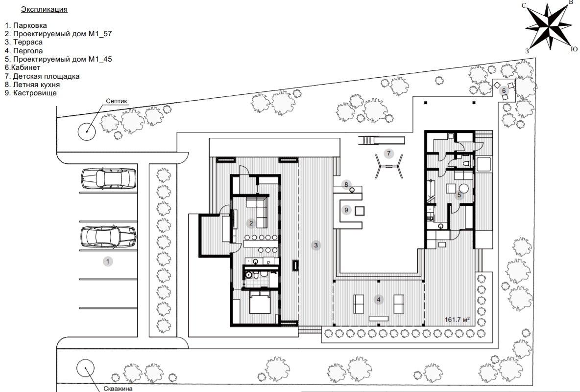
Коттеджный поселок
Проекты модульных домов для коттеджного поселка, Екатеринбург
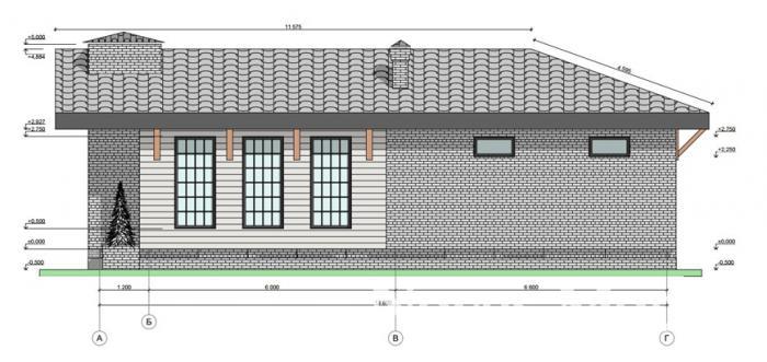
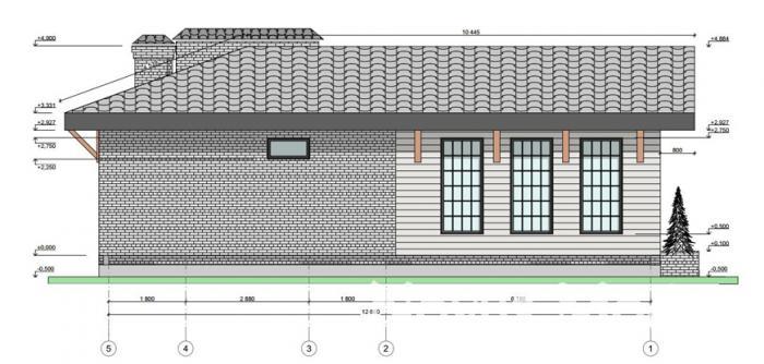
Модульный дом, коттеджный поселок Большая Медведица
Площадь: 130,4 м2
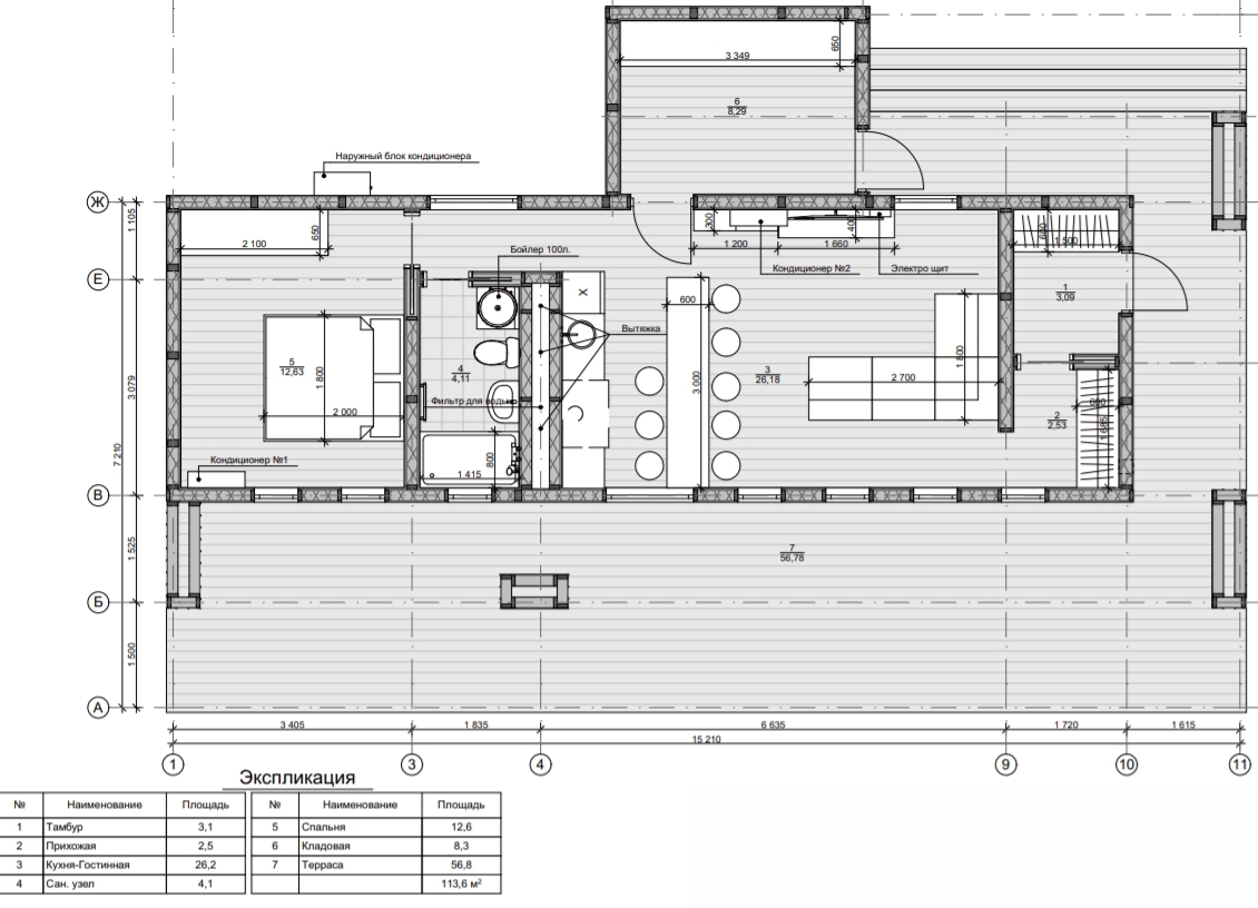
Модульный дом с терассой
Площадь: 113,6 м2
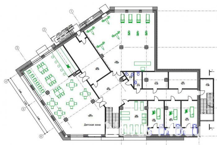
Эскизный проект спа-комплекса с. Кадниково
Этот большой спа-комплекс находится на территории загородного клуба в окрестностях Екатеринбурга. На первом этаже расположены раздевалки и бассейн, а на втором - массажные кабинеты, солевая пещера, тренажерный зал и, конечно, фуд-корт для посетителей комплекса. На крыше разместился летний бассейн с шезлонгами и бар. Фасады выполнены в современной стилистике.
Эскизный проект гостевого дома г. Екатеринбург
Площадь: 233 м2 Услуги: генплан, фасады, разрезы, планы этажей, план кровли, план с расстановкой мебели Выполнен интерьер: кухни, спальных комнат, ванной комнаты Время выполнения: 45 дней
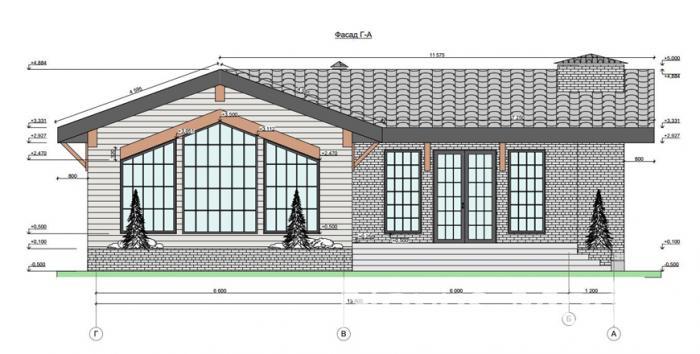
Эскизный проект коттеджа
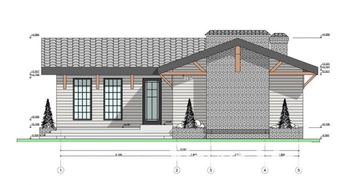
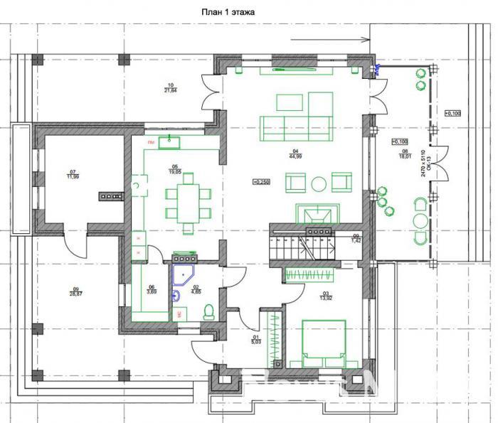
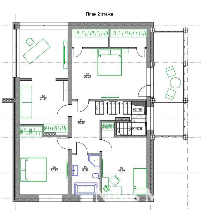
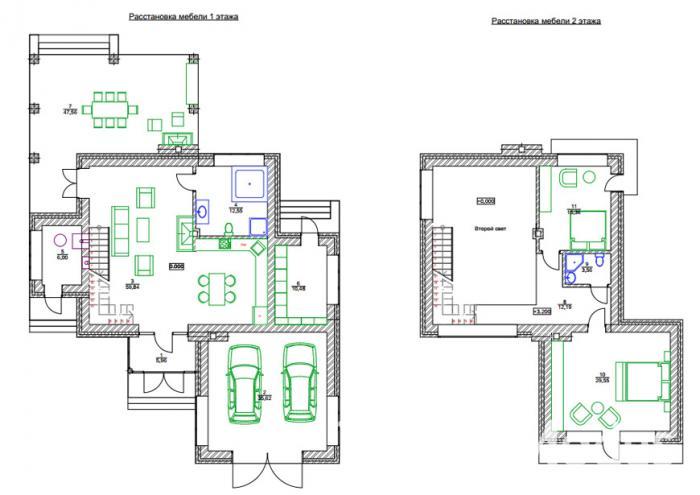
Проект коттеджа, п. Хрустальная
Площадь: 230 м2 Услуги: эскизный проект коттеджа, генплан, фасады, планы этажей, расстановка мебели Время выполнения: 40 дней